Bedroom Designer Essex | Fitted Bedrooms Essex | Designer Bedroom Essex | Bespoke Bedroom Designs | Bedroom Designer | Fitted Bedroom Furniture Essex | Fitted Wardrobes | Bespoke Fitted Bedrooms

In The Bedroom -
We offer a collection of quality wardrobe doors in many different ranges, Select from an extensive Bedroom range of very modern melamine wardrobe doors or Wood-effect laminate wardrobe and bedroom doors. MDF spray painted bedroom doors or real wood replacement wardrobe doors.
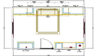
We take all the measurements and then design your new fitted bedroom for you.

Using the latest CAD software we can create photo-realistic prints of your new fitted bedroom, so thst you can see how your new bedroom will look.


Our experienced bedroom designers will guide you through all of the options for your new fitted bedroom, including the design, colour and style option available. Your new luxury bedroom will be fitted by our skilled craftsmen and we will project manage the entire installation process, ensuring that you end up with your dream fitted bedroom with the minimum disruption and hassle.


